viernes, 1 mayo 2026
Liberal de Castilla
  • Cuenca
    • Cuenca provincia
  • Guadalajara
    • Guadalajara provincia
  • Región
  • Actualidad
    • Breves
  • Sociedad
    • Breves
  • Cultura
    • Breves
  • Economía
    • Breves
  • Universidad
  • Tecnología
No Result
View All Result
  • Cuenca
    • Cuenca provincia
  • Guadalajara
    • Guadalajara provincia
  • Región
  • Actualidad
    • Breves
  • Sociedad
    • Breves
  • Cultura
    • Breves
  • Economía
    • Breves
  • Universidad
  • Tecnología
No Result
View All Result
Liberal de Castilla
No Result
View All Result
Inicio Guadalajara provincia

El Pleno del Ayuntamiento de Sacedón aprueba la adjudicación de la primera fase de las obras del nuevo polígono industrial

Liberal de Castilla Por Liberal de Castilla
jueves, 15 de julio de 2021
en Guadalajara provincia
Tiempo de lectura: 2 minutos
0 0
0
El Pleno del Ayuntamiento de Sacedón aprueba la adjudicación de la primera fase de las obras del nuevo polígono industrial
Compartir en FacebookCompartir en TwitterCompartir en WhastsappCompartir por correo

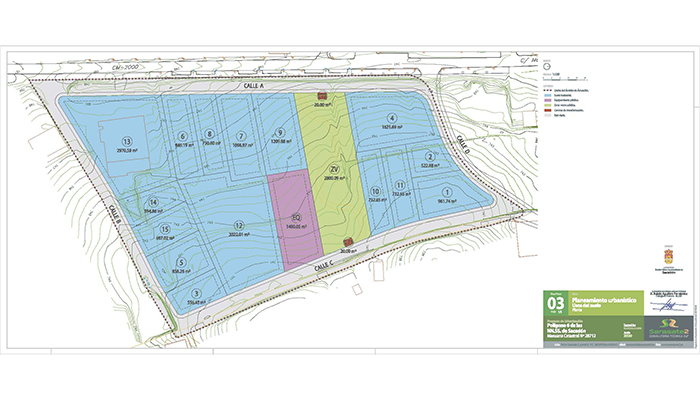
La empresa adjudicataria, Seraco SAU, comenzará a trabajar este mismo verano para que las obras estén finalizadas en el mes de noviembre. Además, se desclasificó como suelo urbanizable un suelo en Córcoles para que un emprendedor pueda instalar su nave agrícola y se aprobó un convenio con la Junta para la cesión de un tramo de carretera, la CM-2000a, ambos puntos con la abstención del concejal popular y los votos a favor de socialistas y ciudadanos

El Pleno del Ayuntamiento de Sacedón aprueba la adjudicación de la primera fase de las obras del nuevo polígono industrialLa sesión ordinaria del Pleno municipal celebrada el pasado lunes en Sacedón trajo consigo importantes novedades, con una apuesta firme por la generación de empleo en el ayuntamiento ribereño. El nuevo polígono industrial, que servirá para atraer nuevas empresas al municipio y ayudar a las que ya están a seguir creciendo, sigue adelante.

“Es uno de los grandes proyectos para este mandato, que nos impulsará a crecer más allá de nuestra apuesta por el turismo y que, incomprensiblemente, ha recibido el voto en contra del único concejal popular que ha tenido a bien acudir al Pleno en representación de sus vecinos, el señor Pérez López, una falta de respeto constante, que repiten sesión tras sesión como reflejan las actas”, explicaba el alcalde, Francisco Pérez Torrecilla.

“Se trata de un proyecto tractor, en el que ya se han interesado varias empresas y que permitirá la creación de varios puestos de trabajo para los vecinos, lo suficientemente importante como para dejar los colores a un lado y sumar por el pueblo”. En esa misma línea, se votó también la desclasificación de un suelo en Córcoles, el S2, para que un emprendedor pueda levantar ahí una nave de uso agrícola con la que desarrollar su actividad. “Aprobada en este caso con la también incomprensible abstención del concejal popular, que no estaba por la labor de favorecer la iniciativa de nuestro vecino”.

Precisamente respecto a la pedanía, durante el turno de ruegos y preguntas se informó sobre el problema puntual ya solucionado del corte de agua; una avería que no tiene nada que ver con los problemas de suministro de otros años. De la misma forma se informó de un problema también solucionado respecto a la cobertura de televisión.

En el caso del convenio de cesión de la carretera, se aprobó y se informó de que la Junta se encargará del asfaltado y la señalización previa del tramo que pasa a considerarse de uso municipal. En la misma sesión se establecieron los festivos locales para 2022: en el caso de Córcoles, los días 30 de mayo y 1 de junio; en el caso de Sacedón, los días 29 y 30 de agosto.

Liberal de Castilla

Liberal de Castilla

Próxima entrada
La actividad de divulgación ‘Ciencia Circular’ llega a los municipios de Castilla-La Mancha

La actividad de divulgación ‘Ciencia Circular’ llega a los municipios de Castilla-La Mancha

Deja una respuesta Cancelar la respuesta

Tu dirección de correo electrónico no será publicada. Los campos obligatorios están marcados con *

Este sitio usa Akismet para reducir el spam. Aprende cómo se procesan los datos de tus comentarios.

Liberal de Castilla

Copyright © 2026 El Liberal de Castilla es una web de De Dvdes SL. Todos los derechos reservados. Correo: redaccion@liberaldecastilla.com

Te pueden interesar estas páginas

  • Contacto
  • Raíces del Liberal
  • A Gritos
  • Quienes somos

Puedes seguinos en....

Welcome Back!

Login to your account below

Forgotten Password?

Retrieve your password

Please enter your username or email address to reset your password.

Log In
No Result
View All Result
  • Cuenca
    • Cuenca provincia
  • Guadalajara
    • Guadalajara provincia
  • Región
  • Actualidad
    • Breves
  • Sociedad
    • Breves
  • Cultura
    • Breves
  • Economía
    • Breves
  • Universidad
  • Tecnología

Copyright © 2026 El Liberal de Castilla es una web de De Dvdes SL. Todos los derechos reservados. Correo: redaccion@liberaldecastilla.com